中古一戸建て 西尾市熊味町北十五夜
所在地
西尾市熊味町北十五夜
2,380万円
30.41坪
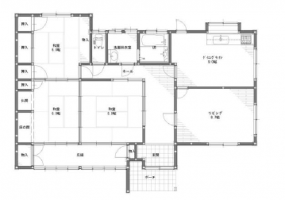
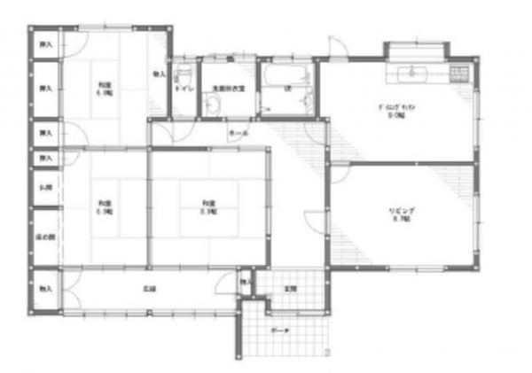
3LDK
物件概要
- 交通
-
西尾線 西尾駅 まで 徒歩17分
- 接道状況
- 南東側 私道4m 間口約4m
- 土地面積
- 公簿 295.40㎡ (89.35坪)
- 建物面積
- 100.55㎡ (30.41坪)
- 築年数
-
1981年
(昭和56)
10月
築44年 - 建ぺい率
- 60%
- 容積率
- 150%
- 土地権利
- 所有権
- 構造および階数
- 木造 地上1階建
- 小学校区
- 中学校区
- 私道負担
- 有 145 ㎡
- 地目
- 宅地
- 現況
- 空
- 引渡時期
- 相談
- 駐車場
- 上水道
- 下水道
- ガス
- 都市計画
- 市街化区域
- 用途地域
- 1種中高
- 設備・条件
- 備考
- 取引態様
- 仲介

